空間工房2014モデル住宅のご案内



モデル住宅の販売は終了致しました。

販売価格 : 2500万円(税込み) 掛かる諸費用等詳細は、お問い合わせください。

 
モデル外観1   モデル外観2
elevation 1   elevation 2
   
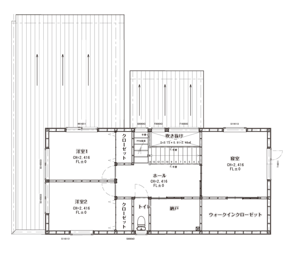
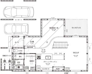
1F平面図   2F平面図
1F Plan 2F Plan
             
     
西 立面   東 立面   北 立面   南 立面
     

配置図配置図

モデルハウスの内部写真をご覧ください。

 

空間工房のモデル住宅 建築概要です。
所在値:
滝川市東町5丁目157-1の内2

敷地面積   304.0m2 (91.96坪)
建築面積   118.05m2 (35.639坪)
1階床面積   118.05m2 (35.639坪)
実質居住面積 71.22m2 (21.5坪)
2階床面積   62.11m2 (18.751坪)
延べ床面積   180.16m2 (54.389坪)
     
用途地域   法22条地域
第一種中高層住居専用地域
防火指定なし
建ぺい率   60%
容積率   150%
     
その他:
交通期間:中央バス東町団地バス停 約200m 徒歩3分/
学校:滝川東小学校 約830m 徒歩約11分、滝川明苑中学校 約1200m 徒歩約15分、滝川高校 約510m 徒歩約7分/
医療機関:滝川市立病院 約1600m、おおい内科循環器科クリニック、あい歯科クリニック 約310m / 公共機関:市役所:1700m / 食料品等:ビックハウス約900m
上下水道:中空知広域水道企業団 / ガス:滝川ガス / 電気:北海道電力


    この東町5丁目は、近くに医療モール、生活に必要な食料品を扱うお店が豊富です。
ビッグハウス、生鮮おろし、また生協までほぼ同じ距離にあり非常に便利です。バス停もとほ3分と非常に交通の便もよい生活に適した地域です。
■食料品   ■病院・歯科            
ビックハウス   メディカルモール滝川            
                 
           
東小学校   明苑中学校   滝川高校        
                 
  すぐ近くにセイコーマートがあり便利な立地です。            
                 
                 

とちの販売は終了致しました。

ご案内:
モデル住宅のすぐそばの緑町3丁目に2区画土地を御用意致しました。詳細は後ほHPにてご案内致します。
掲載まで少々お待ちください。概要はこちらから

     
HOME concept  
 
     
閉じる